Villino a schiera con giardino e posto auto

  • €60.000
Via Giovanni Amendola, 7, Abbasanta, Aristanis/Oristano, Sardigna/Sardegna, 09071, Italia
Vendita
Villino a schiera con giardino e posto auto
Via Giovanni Amendola, 7, Abbasanta, Aristanis/Oristano, Sardigna/Sardegna, 09071, Italia
  • €60.000

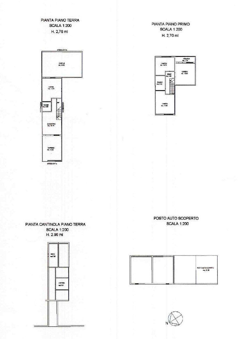
Descrizione


Villino a schiera situato nel tranquillo e più recente quartiere residenziale di Abbasanta.

L’accesso avviene attraverso un cortile comune, dov’è presente il posto auto di pertinenza, che conduce all’ingresso dell’abitazione, la quale accoglie con un piccolo giardino antistante, protetto da un cancello.
All’interno, un luminoso salotto apre le porte alla casa, mentre al piano terra troviamo un bagno e una cucina abitabile, dotata di accesso diretto al giardino posteriore.

Una scala conduce al piano superiore, dove si sviluppa la zona notte, composta da due spaziose camere da letto matrimoniali, di cui una con un grazioso balcone, e una cameretta più piccola, perfetta per bambini, ospiti o come studio.

Insieme alla proprietà sono disponibili due cantine, con accesso indipendente adiacente all’ingresso, utili per ulteriori spazi di stoccaggio.
La villetta si presenta immediatamente abitabile, pur necessitando di qualche miglioramento, con predisposizione per il riscaldamento e una stufa a pellet già presente.

  • Indirizzo Via Amendola, 7
  • Città Abbasanta
  • CAP 09071
  • Zona Oristano

Dettagli

Aggiornato il Luglio 11, 2025 at 9:40 am
  • ID proprietà: 104-MS
  • Prezzo: €60.000
  • Dimensione proprietà: 110 m²
  • Terreno privato: 51 m²
  • Camere da letto: 3
  • Camere: 5
  • Bagni: 2
  • Tipo proprietà: Villeta a schiera
  • Stato proprietà: Vendita
  • Piano: Terra
  • Numero di Piani: 2
  • Stato: Buono stato

Informazioni sui contatti

Vedi annunci

Richiedi informazioni su questa proprietà

Annunci simili

Confronta Strutture

Confronta
Stefania Fara
  • Stefania Fara