Villetta da ultimare circondata da giardino

  • €75.000
Via Don Falchi, 1, Noragugume, Nuoro, Sardigna/Sardegna, 08010, Italia
Villetta da ultimare circondata da giardino
Via Don Falchi, 1, Noragugume, Nuoro, Sardigna/Sardegna, 08010, Italia
  • €75.000

Descrizione

Villetta caposchiera unifamiliare circondata per tre lati da giardino privato e con garage.

Sorge nel quartiere residenziale e tranquillo di Noragugume, paese nel centro-Sardegna posto tra la catena del Marghine e il lago Omodeo.

Il piano terra dell’abitazione ospita la taverna con la cucina a vista e la spaziosa sala da pranzo con grande angolo camino. È presente un bagno di servizio.

L’ambiente conduce al garage, all’uscita posteriore per il retro del giardino e alla scala per il primo piano rialzato, che ha accesso sia interno, sia esterno.

Il primo livello è destinato principalmente per la zona notte, con tre grandi camere da letto matrimoniali e il bagno padronale; include un’ampia stanza multifunzionale adatta per essere un luminoso soggiorno.

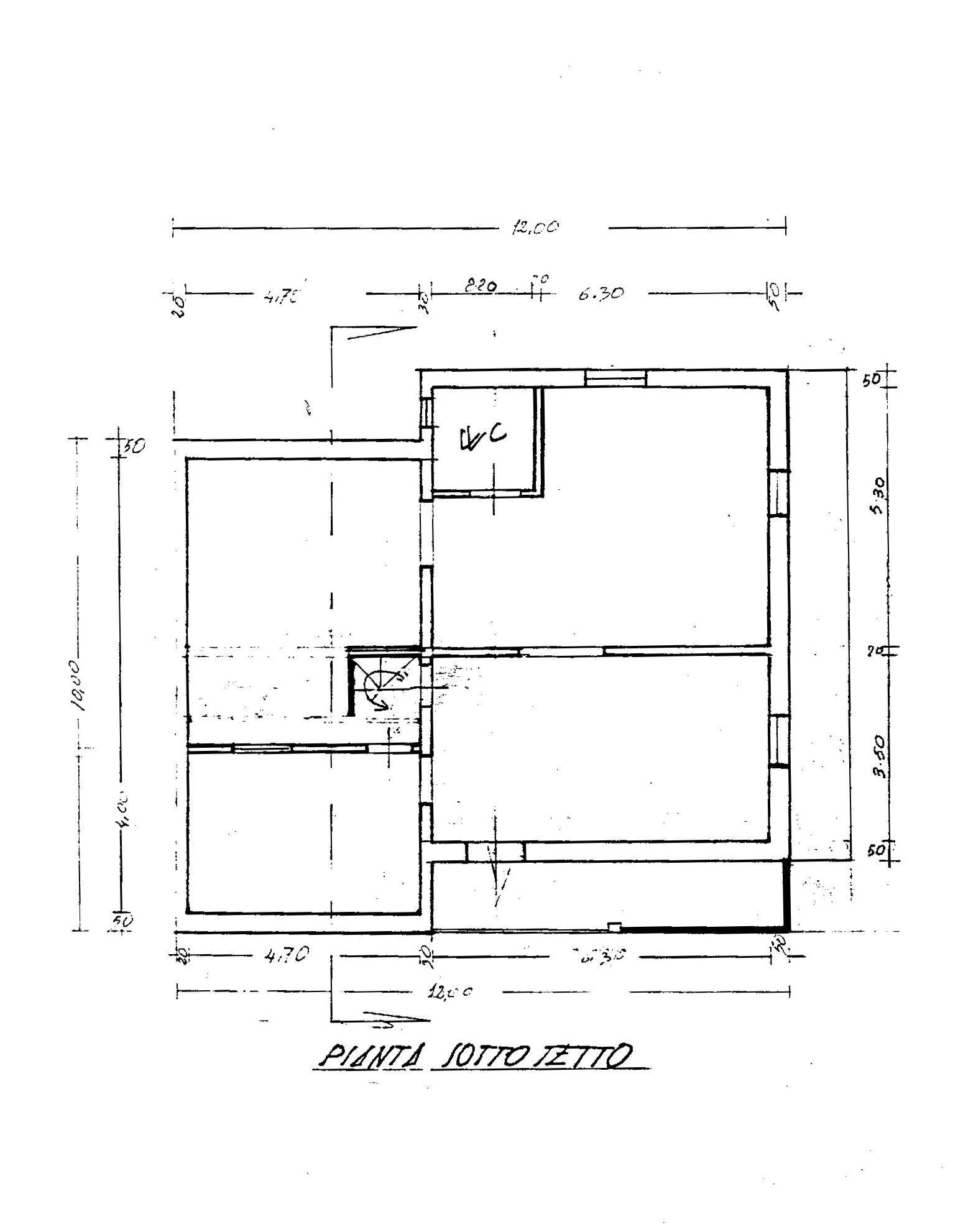
Il sottotetto è da completare ed è diviso in diversi ambienti abitabili.

La casa dispone di autorimessa nel cortile anteriore, mentre a lato e posteriormente vi è il giardino di oltre 200mq, ombreggiato da un agrumeto.

La villetta necessita di rifiniture e di essere completata, oltre che per la mansarda, anche per la facciata, ma risulta essere complessivamente subito abitabile e agibile.

  • Indirizzo Via Don Falchi, 1
  • Città Noragugume
  • CAP 08010
  • Zona Nuoro

Dettagli

Aggiornato il Settembre 16, 2025 at 10:21 am
  • ID proprietà: 105-NG
  • Prezzo: €75.000
  • Dimensione proprietà: 185 m²
  • Camere da letto: 3
  • Camere: 5
  • Bagni: 2
  • Garage: 1
  • Dimensioni di garage: 24 mq
  • Tipo proprietà: Villeta a schiera
  • Piano: Rialzato
  • Numero di Piani: 3
  • Stato: Da ultimare

Informazioni sui contatti

Vedi annunci

Richiedi informazioni su questa proprietà

Annunci simili

Confronta Strutture

Confronta
Stefania Fara
  • Stefania Fara