Ultimo piano mansardato ampio con terrazza

  • €39.000
Via Giotto, 6, Macumere/Macomer, Nuoro, Sardigna/Sardegna, 08015, Italia
Vendita
Ultimo piano mansardato ampio con terrazza
Via Giotto, 6, Macumere/Macomer, Nuoro, Sardigna/Sardegna, 08015, Italia
  • €39.000

Descrizione

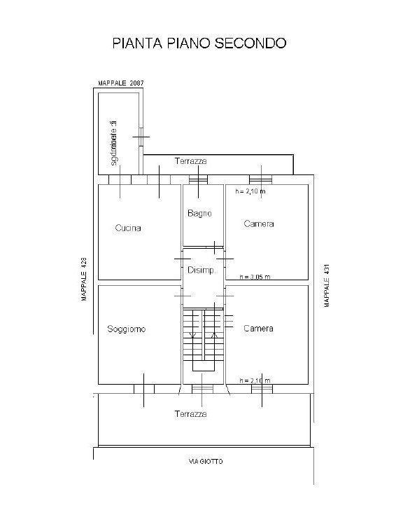
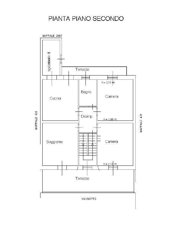
Appartamento mansardato al secondo e ultimo piano di immobile di tre unità abitative totali.

Si trova in un quartiere semi-residenziale della cittadina di Macomer, con parchi, piazze e scuole vicine ma anche negozi ed ogni genere di servizio primario raggiungibile facilmente anche con una passeggiata.

La posizione all’ultimo piano garantisce all’abitazione privacy e silenzio, nonché luce naturale per tutto il giorno.

Si compone di 4 locali: due grandi camere da letto matrimoniali o doppie; bagno confortevole con vasca; luminoso soggiorno con caminetto e accesso ad una spaziosa terrazza soleggiata che si affaccia sul quartiere; cucina abitabile con cucinotto e balcone posto nella facciata sul retro.

L’appartamento risulta necessitante di ristrutturazione, con terrazza e balcone da risanare.

È possibile effettuare l’acquisto dell’appartamento singolarmente, oppure insieme all’appartamento del piano terra anch’esso di 4 locali, superficie simile e con cortile di pertinenza. Subito abitabile e già ristutturato.

Contattare l’Agenzia per ulteriori informazioni.

  • Indirizzo Via Giotto, 6
  • Città Macomer
  • CAP 08015
  • Zona Nuoro

Dettagli

Aggiornato il Settembre 2, 2025 at 1:04 pm
  • ID proprietà: 100-VSS
  • Prezzo: €39.000
  • Dimensione proprietà: 113 m²
  • Camere da letto: 2
  • Camere: 4
  • Bagno: 1
  • Tipo proprietà: Appart. con 4 o più locali
  • Stato proprietà: Vendita
  • Piano: 3
  • Numero di Piani: 3
  • Stato: Da ristrutturare

Caratteristiche

Informazioni sui contatti

Vedi annunci

Richiedi informazioni su questa proprietà

Annunci simili

Confronta Strutture

Confronta
Stefania Fara
  • Stefania Fara