Singolare casa indipendente ampia con giardino e garage

  • €165.000
Via Sant'Ilario, 5, Macumere/Macomer, Nuoro, Sardigna/Sardegna, 08015, Italia
Singolare casa indipendente ampia con giardino e garage
Via Sant'Ilario, 5, Macumere/Macomer, Nuoro, Sardigna/Sardegna, 08015, Italia
  • €165.000

Descrizione

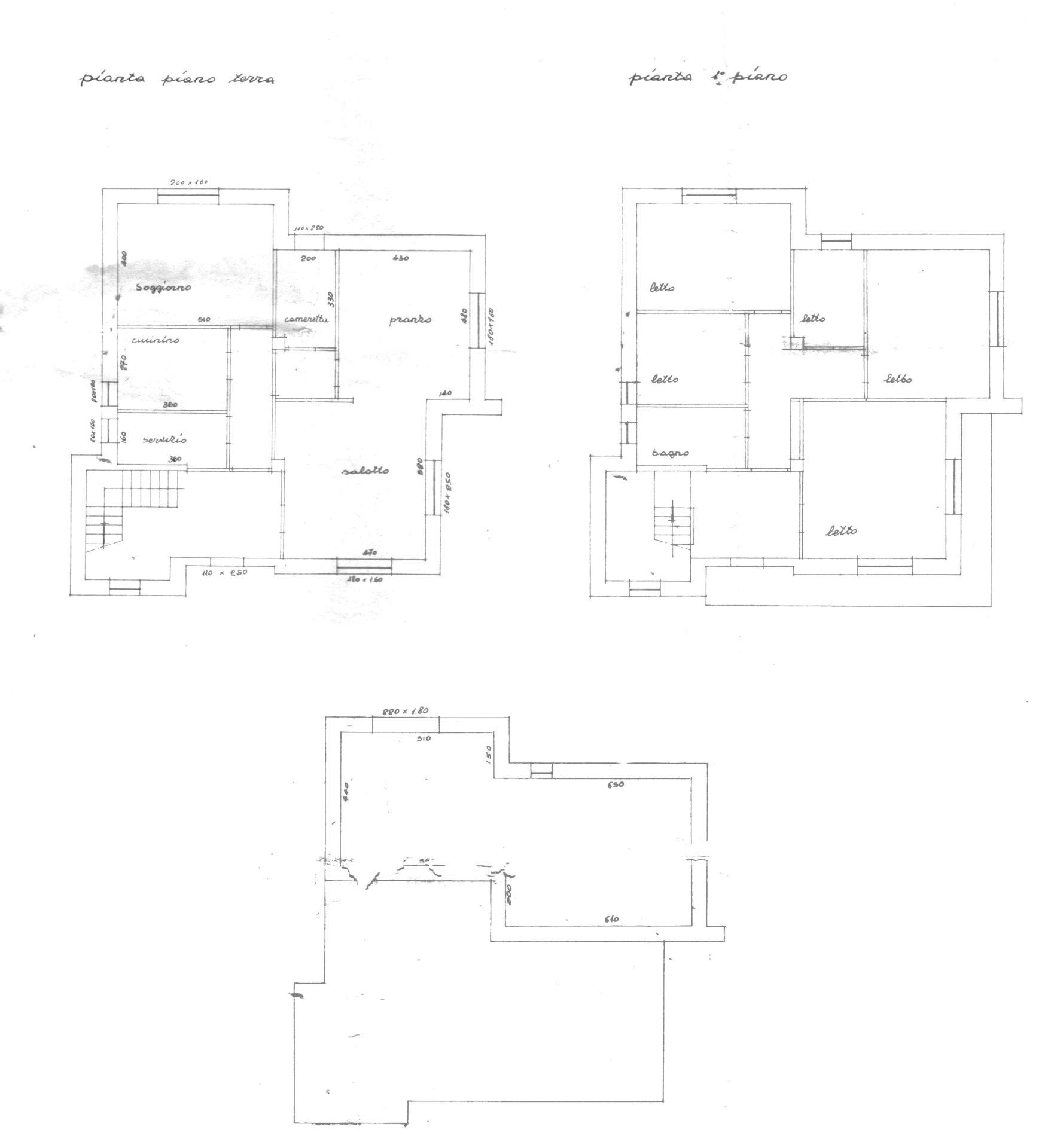
Casa indipendente su due livelli, completa di cantina, mansarda e garage doppio. Il giardino si estende su tre lati ed è dotato di cancello carrabile, con la possibilità di un posto auto interno.
La proprietà si trova a Sertinu, un tranquillo quartiere residenziale di Macomer, in una posizione ideale per accedere facilmente a negozi, scuole e parchi.
L’immobile offre due ampi piani, con la possibilità di essere suddivisi in due appartamenti autonomi. Questo è possibile grazie alla scala che li collega, illuminata da una vetrata e separata dalle abitazioni tramite disimpegni.

Al pianterreno troviamo un accogliente salotto con camino, una cucina abitabile, un bagno con box doccia e l’accesso al giardino sul retro.
Il primo piano ospita cinque locali, compresi due camere singole, due doppie e un bagno con vasca. Dal quinto locale, più spazioso, si accede a un balcone soleggiato che si affaccia su due lati dell’abitazione, permettendo di godere della vista sul giardino.
Il sottotetto comprende una mansarda utilizzabile. La cantina, situata al livello inferiore e completa di un bagnetto di servizio, ha accesso dal cortile esterno.
Il garage, posizionato vicino al cancello d’ingresso, offre oltre 60 mq di spazio.

Nel complesso, la casa necessita di lavori di ristrutturazione.

  • Indirizzo Via Sant'Ilario, 5
  • Città Macomer
  • CAP 08015
  • Zona Nuoro

Dettagli

Aggiornato il Novembre 6, 2025 at 12:57 pm
  • ID proprietà: 100-BRR
  • Prezzo: €165.000
  • Dimensione proprietà: 300 m²
  • Terreno privato: 450 m²
  • Camere da letto: 3
  • Camere: 9
  • Bagni: 2
  • Garage: 2
  • Dimensioni di garage: 60 mq
  • Tipo proprietà: Casa Indipendente
  • Piano: Terra
  • Numero di Piani: 2
  • Stato: Da ristrutturare

Caratteristiche

Informazioni sui contatti

Vedi annunci

Richiedi informazioni su questa proprietà

Annunci simili

Confronta Strutture

Confronta
Stefania Fara
  • Stefania Fara