Dimora di due piani con ampio giardino e doppio box auto

  • €63.000
Via Eleonora d'Arborea, 12, Sindìa/Sindia, Nuoro, Sardigna/Sardegna, 08018, Italia
Dimora di due piani con ampio giardino e doppio box auto
Via Eleonora d'Arborea, 12, Sindìa/Sindia, Nuoro, Sardigna/Sardegna, 08018, Italia
  • €63.000

Descrizione

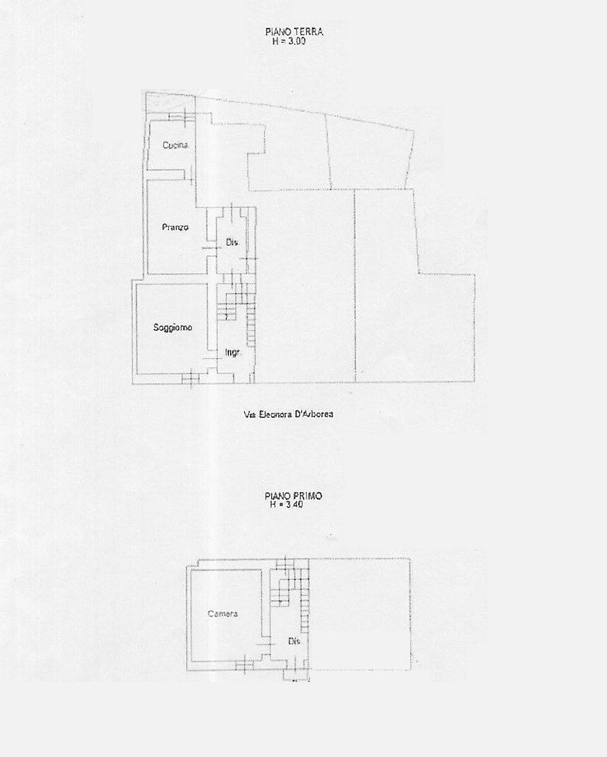
Dimora che vanta una superficie commerciale di circa 300 mq situata nel paese di Sindia, un borgo autentico dove il fascino delle tradizioni sarde si intreccia con una storia millenaria fatta di siti archeologici, sorgenti naturali e attività tipiche pastorali.

L’abitazione si sviluppa su due livelli: al piano terra, l’ingresso si apre su due ampie sale, mentre un corridoio conduce verso la zona della casa composta da una cucina abitabile arricchita da un caminetto tradizionale e un pratico cucinotto. Da qui si accede al bagno e alla cortile privato posta sul retro, che ospita un ampio magazzino indipendente dalle grandi potenzialità di utilizzo.

Salendo al primo piano, la zona notte si sviluppa attraverso due camere da letto matrimoniali dalle dimensioni generose, servite da un balcone con affaccio sulla via principale.

A completare la proprietà, due box auto singoli situati in posizione immediatamente adiacente. Sebbene l’immobile necessiti di un intervento di ristrutturazione globale, la sua struttura è solida.

  • Indirizzo Via Eleonora d'Arborea, 12
  • Città Sindia
  • CAP 08018
  • Zona Nuoro

Dettagli

Aggiornato il Gennaio 7, 2026 at 11:53 am
  • ID proprietà: 116-GM
  • Prezzo: €63.000
  • Dimensione proprietà: 300 m²
  • Camere da letto: 3
  • Camere: 6
  • Bagno: 1
  • Garage: 2
  • Piano: Terra
  • Numero di Piani: 2
  • Stato: Da ristrutturare

Informazioni sui contatti

Vedi annunci

Richiedi informazioni su questa proprietà

Annunci simili

Confronta Strutture

Confronta
Stefania Fara
  • Stefania Fara