Casa tipica abitabile con facciata già ristrutturata

  • €65.000
Via Bardosu, 10, Cùllieri/Cuglieri, Aristanis/Oristano, Sardigna/Sardegna, 09073, Italia
Vendita
Casa tipica abitabile con facciata già ristrutturata
Via Bardosu, 10, Cùllieri/Cuglieri, Aristanis/Oristano, Sardigna/Sardegna, 09073, Italia
  • €65.000

Descrizione

Abitazione indipendente con facciata già ristrutturata, situata nel centro storico di Cuglieri, a breve distanza dalla basilica di Santa Maria della Neve, nota per la sua vista panoramica.

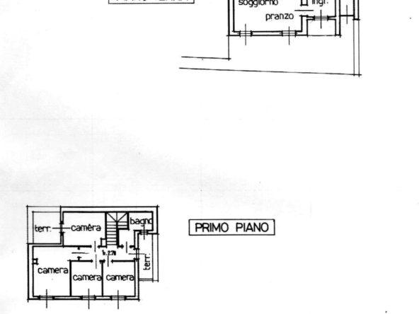
La casa si sviluppa su tre livelli.

All’ingresso al piano terra, che si affaccia sulla strada principale, si accede a un corridoio che porta al bagno con box doccia, a un ripostiglio nel sottoscala e a un ampio ambiente adatto come camera da letto o soggiorno.

Il primo piano ospita due camere da letto, una delle quali con balconcino che si affaccia sul lato posteriore della casa, offrendo una vista aperta sulle altre abitazioni circostanti.

Al secondo e ultimo piano è presente una cucina spaziosa con camino, e una luminosa stanza ideale come salotto, che conduce ad una terrazza che regala viste sui tetti del paese, sulle montagne della catena del Montiferru e sul mare all’orizzonte.

L’immobile è pronto per essere abitato, non necessita di ulteriori interventi di ristrutturazione e le facciate sono già state recentemente rinnovate.

  • Indirizzo Via Bardosu, 10
  • Città Cuglieri
  • CAP 09073
  • Zona Oristano

Dettagli

Aggiornato il Febbraio 6, 2025 at 11:53 am
  • ID proprietà: 115-DK
  • Prezzo: €65.000
  • Dimensione proprietà: 90 m²
  • Camere da letto: 3
  • Camere: 5
  • Bagno: 1
  • Anno di costruzione: 1965
  • Tipo proprietà: Casa Indipendente
  • Stato proprietà: Vendita
  • Piano: Terra
  • Numero di Piani: 3
  • Stato: Buono stato

Informazioni sui contatti

Vedi annunci

Richiedi informazioni su questa proprietà

Annunci simili

Confronta Strutture

Confronta
Stefania Fara
  • Stefania Fara