Casa indipendente con cortile vicino al centro

  • €95.000
Via Campania, 8, Macumere/Macomer, Nuoro, Sardigna/Sardegna, 08015, Italia
Vendita
Casa indipendente con cortile vicino al centro
Via Campania, 8, Macumere/Macomer, Nuoro, Sardigna/Sardegna, 08015, Italia
  • €95.000

Descrizione

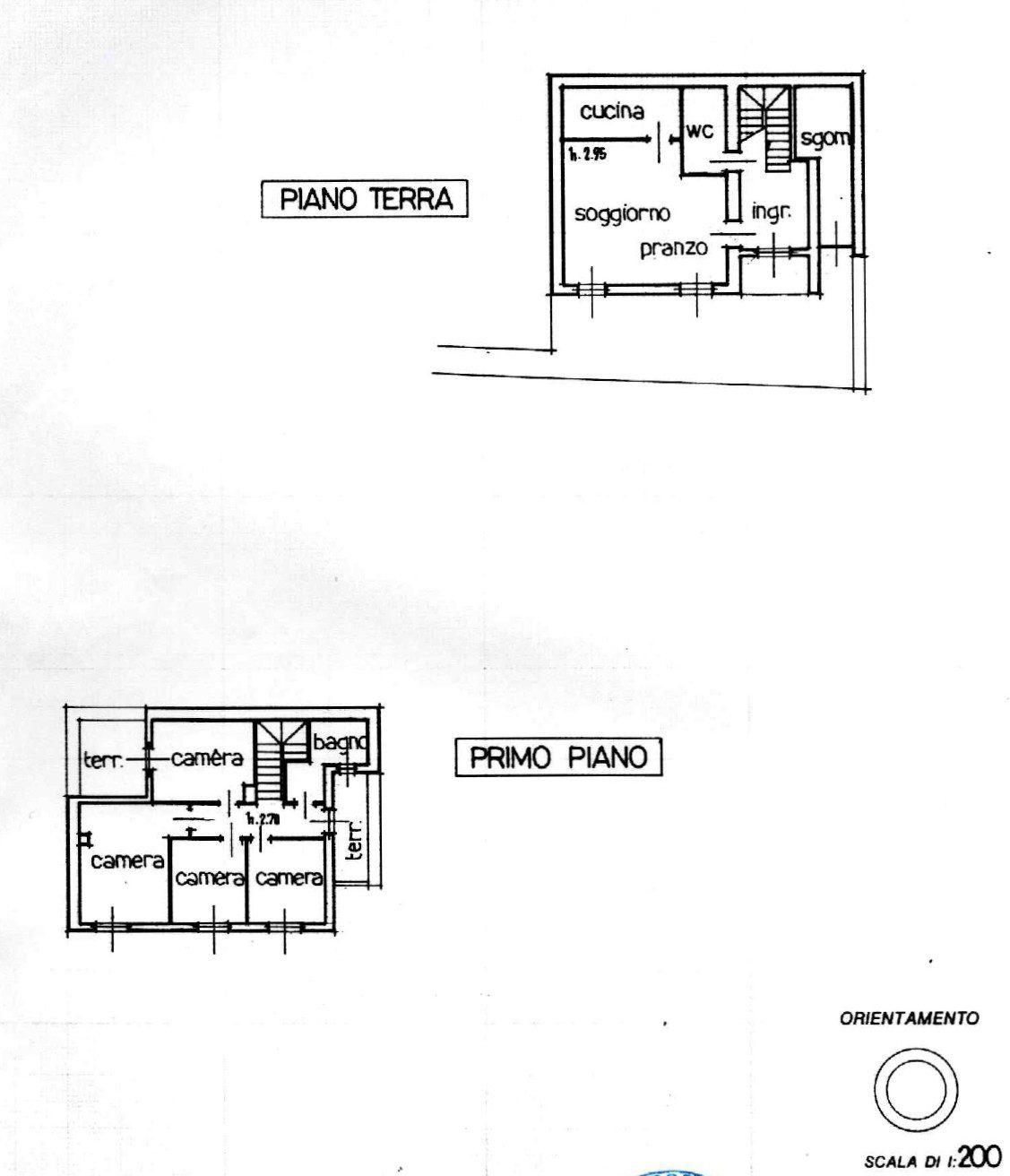
Casa indipendente su due piani situata vicino al centro di Macomer e subito abitabile, senza necessità di lavori.

Uno dei punti di forza di questo immobile è l’ingresso, che passa attraverso un cortile con cancello, offrendo riservatezza e sicurezza, particolarmente apprezzabile essendo al pianterreno.
La casa dispone di un cortile privato ed è accogliente fin dall’ingresso, che conduce a un ampio disimpegno.

La sala da pranzo, spaziosa, è dotata di camino e si collega al cucinotto e a un primo bagno.
Al primo piano si trova la zona notte, composta da quattro ambienti che possono essere utilizzati come camere da letto o come studi e salotti. Sono presenti anche un bagno padronale, un balcone affacciato sul cortile anteriore e una terrazza sul retro.

L’immobile è immediatamente abitabile.

  • Indirizzo Via Campania, 8
  • Città Macomer
  • CAP 08015
  • Zona Nuoro

Dettagli

Aggiornato il Agosto 20, 2025 at 9:49 am
  • ID proprietà: 100-NDC
  • Prezzo: €95.000
  • Dimensione proprietà: 168 m²
  • Camere da letto: 3
  • Camere: 6
  • Bagni: 2
  • Tipo proprietà: Casa Indipendente
  • Stato proprietà: Vendita
  • Piano: Terra
  • Numero di Piani: 2
  • Stato: Buono stato

Caratteristiche

Informazioni sui contatti

Vedi annunci

Richiedi informazioni su questa proprietà

Annunci simili

Confronta Strutture

Confronta
Stefania Fara
  • Stefania Fara