Bilocale al piano terra adatto come abitazione o ufficio

  • €45.000
Via Sant'Ilario, 10, Macumere/Macomer, Nuoro, Sardigna/Sardegna, 08015, Italia
Bilocale al piano terra adatto come abitazione o ufficio
Via Sant'Ilario, 10, Macumere/Macomer, Nuoro, Sardigna/Sardegna, 08015, Italia
  • €45.000

Descrizione

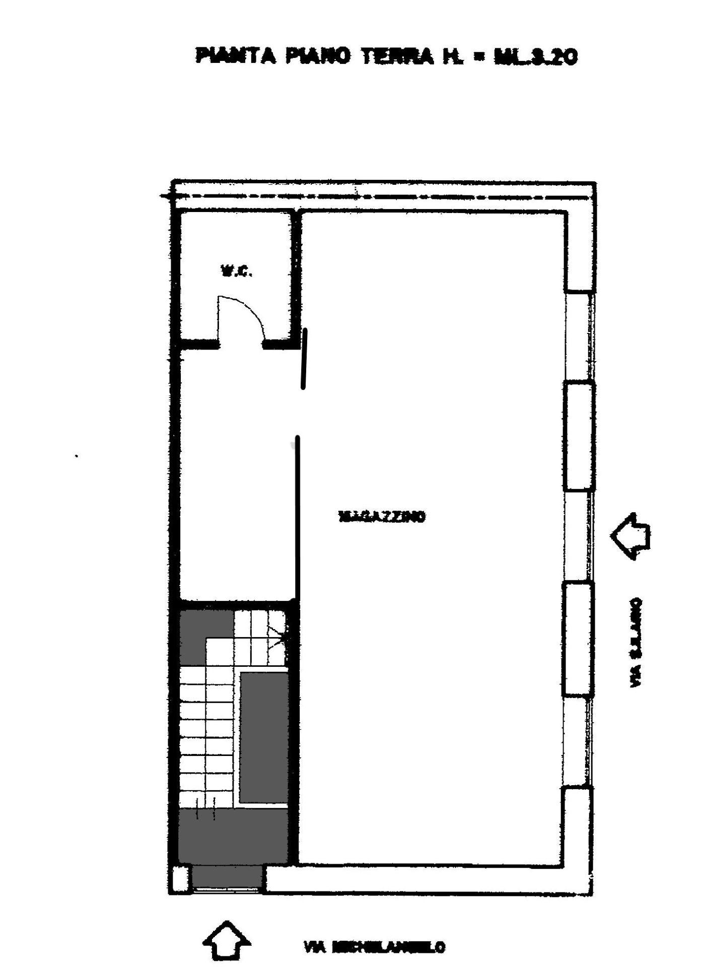
Bilocale di categoria catastale C/2, situato in una posizione centrale strategica nella cittadina di Macomer. Questa proprietà di circa 60 mq commerciali è perfettamente distribuita su un unico livello al piano terra, garantendo così un comodo accesso.
L’immobile si distingue per la sua ampia sala, caratterizzata da finestre che si affacciano su tre lati, creando un ambiente luminoso e accogliente. L’ingresso è protetto da una robusta serranda metallica, offrendo sicurezza e privacy. Completano l’unità una cameretta ripostiglio e un bagno completo con doccia.
Collocato all’interno di un fabbricato bifamiliare recentemente ristrutturato, questo spazio gode di una posizione angolare su due vie: Via S. Ilario e Via Buonarroti, conferendogli un’ottima visibilità e accessibilità. La versatilità di questo bilocale è notevole: si presta facilmente a diverse destinazioni d’uso, come negozio, ufficio o laboratorio, grazie alla presenza di saracinesche. Tuttavia, offre anche il potenziale per essere trasformato in un’accogliente abitazione, adattandosi così alle esigenze di chi desidera vivere in una zona centrale e dinamica.
Attualmente, l’Attestato di Prestazione Energetica (APE) è in fase di lavorazione.

  • Indirizzo Via Sant'Ilario, 10
  • Città Macomer
  • CAP 08015
  • Zona Nuoro

Dettagli

Aggiornato il Settembre 9, 2025 at 9:45 am
  • ID proprietà: 100-CC
  • Prezzo: €45.000
  • Dimensione proprietà: 60 m²
  • Camera da letto: 1
  • Camere: 2
  • Bagno: 1
  • Tipo proprietà: Appart. Bilocale
  • Piano: Terra
  • Numero di Piani: 2
  • Stato: Buono stato

Caratteristiche

Informazioni sui contatti

Vedi annunci

Richiedi informazioni su questa proprietà

Annunci simili

Confronta Strutture

Confronta
Stefania Fara
  • Stefania Fara