Appartamento trilocale da ultimare in pieno centro

  • €40.000
Corso Umberto Primo, 216, Macumere/Macomer, Nuoro, Sardigna/Sardegna, 08015, Italia
Appartamento trilocale da ultimare in pieno centro
Corso Umberto Primo, 216, Macumere/Macomer, Nuoro, Sardigna/Sardegna, 08015, Italia
  • €40.000

Descrizione

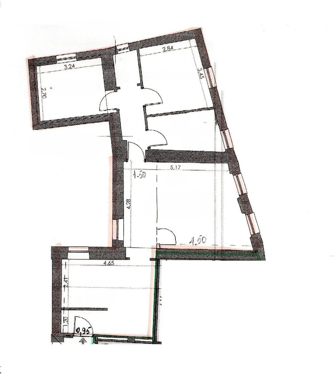
Luminoso appartamento di 75 mq situato al secondo piano di una palazzina in posizione centrale, lungo il corso di Macomer.

L’immobile rappresenta la soluzione ideale per chi cerca un investimento sicuro o per chi desidera personalizzare la propria casa partendo da una base solida e già ben distribuita, essendo attualmente da ultimare, edoffre ampie potenzialità di personalizzazione degli ambienti interni.

La metratura è ottimizzata per ospitare 3 locali, configurati per includere una zona giorno accogliente con balcone e 2 camere da letto.

Un valore aggiunto è la possibilità di poter costruire due bagni, dettaglio che garantisce il massimo comfort.

La posizione centrale permette di muoversi comodamente a piedi verso tutti i principali servizi, uffici e attività commerciali della cittadina. Un’opportunità imperdibile per chi vuole realizzare un progetto su misura con un budget estremamente contenuto.

  • Indirizzo Corso Umberto I, 216
  • Città Macomer
  • CAP 08015
  • Zona Nuoro

Dettagli

Aggiornato il Gennaio 7, 2026 at 10:17 am
  • ID proprietà: 100-DRC
  • Prezzo: €40.000
  • Dimensione proprietà: 75 m²
  • Camere da letto: 2
  • Camere: 3
  • Bagni: 2
  • Tipo proprietà: Appart. Trilocale
  • Piano: 2
  • Numero di Piani: 2
  • Stato: Da ultimare

Caratteristiche

Informazioni sui contatti

Vedi annunci

Richiedi informazioni su questa proprietà

Annunci simili

Confronta Strutture

Confronta
Stefania Fara
  • Stefania Fara