Appartamento pronto all’uso sul Corso principale

  • €65.000
Corso Umberto Primo, 216, Macumere/Macomer, Nuoro, Sardigna/Sardegna, 08015, Italia
Appartamento pronto all’uso sul Corso principale
Corso Umberto Primo, 216, Macumere/Macomer, Nuoro, Sardigna/Sardegna, 08015, Italia
  • €65.000

Descrizione

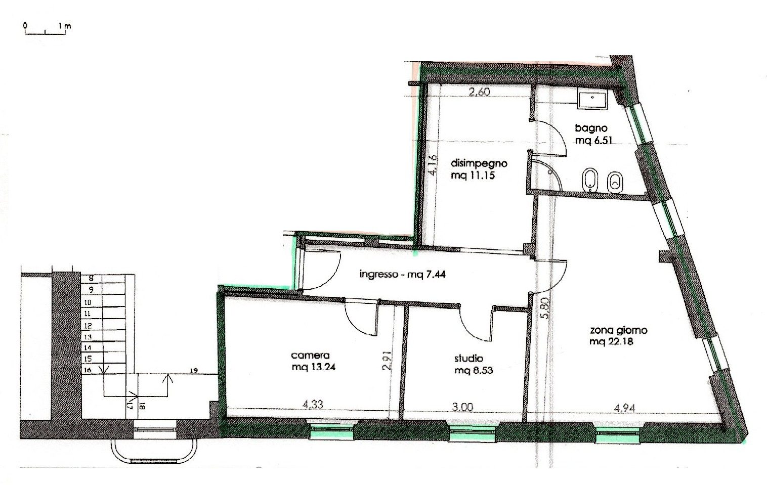
Situato al primo piano di una palazzina di soli due livelli, questo appartamento occupa una posizione privilegiata lungo il corso principale di Macomer, garantendo l’accesso immediato a piedi a tutte le necessità quotidiane, dalle attività commerciali ai collegamenti logistici e ai servizi di ristorazione.

La disposizione ad angolo e la doppia esposizione assicurano una luminosità costante in tutti gli ambienti, valorizzando i tre vani principali che compongono la zona notte e il living. Lo spazio interno è distribuito in modo funzionale e comprende una camera matrimoniale generosa nelle dimensioni, un secondo ambiente versatile da destinare a studio o cameretta e una cucina abitabile fornita di arredi.

Un disimpegno ampio collega le stanze al bagno, recentemente rinnovato seguendo canoni moderni.

L’immobile ha beneficiato di una ristrutturazione complessiva che ha incluso l’installazione di nuovi infissi e di un sistema di riscaldamento efficiente, caratteristiche che permettono un ingresso immediato senza necessità di ulteriori interventi manutentivi.

  • Indirizzo Corso Umberto I, 216
  • CAP 08015

Dettagli

Aggiornato il Dicembre 23, 2025 at 10:45 am
  • ID proprietà: 100-DRA
  • Prezzo: €65.000
  • Dimensione proprietà: 69 m²
  • Camera da letto: 1
  • Camere: 3
  • Bagno: 1
  • Piano: 1
  • Numero di Piani: 2
  • Stato: Ristrutturato

Informazioni sui contatti

Vedi annunci

Richiedi informazioni su questa proprietà

Annunci simili

Confronta Strutture

Confronta
Stefania Fara
  • Stefania Fara