Ampia dimora di due piani con due garage e giardino privato

  • €75.000
Via Eleonora d'Arborea, 12, Sindìa/Sindia, Nuoro, Sardigna/Sardegna, 08018, Italia
Vendita
Ampia dimora di due piani con due garage e giardino privato
Via Eleonora d'Arborea, 12, Sindìa/Sindia, Nuoro, Sardigna/Sardegna, 08018, Italia
  • €75.000

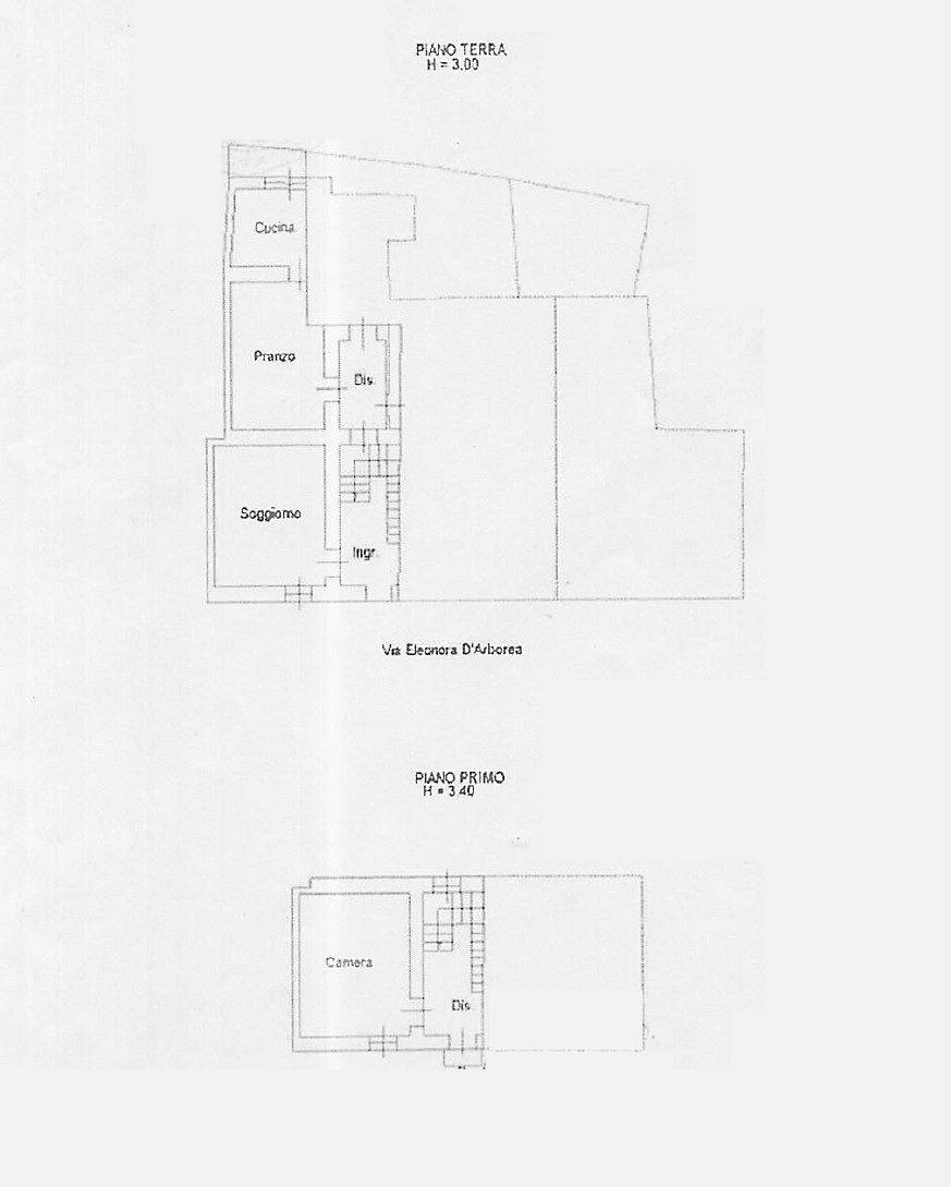
Descrizione

Dimora che si estende su una superficie commerciale di 300 mq, comprendendo sia l’area abitativa che lo spazio esterno. Situata nel paese di Sindia, un borgo accogliente e ricco di tradizioni, è immersa in un contesto di grande valore archeologico, caratterizzato da sorgenti naturali e attività pastorali tipiche, come la produzione di formaggi.
L’edificio si articola su due livelli: al piano terra si accede tramite due ampie stanze, mentre un corridoio conduce alla cucina abitabile dotata di caminetto e cucinotto, al bagno e all’uscita che dà sul cortile, ubicato nella parte posteriore della casa. Inoltre, la proprietà include un ampio magazzino, utile per vari usi.
Al primo piano si trovano due camere da letto spaziose e luminose, accompagnate da un balcone che si affaccia sulla via principale. Completano l’offerta due box auto singoli, posizionati immediatamente accanto all’edificio. La struttura richiede lavori di ristrutturazione generale, offrendo così l’opportunità di personalizzarla secondo i propri gusti.

  • Indirizzo Via Eleonora d'Arborea, 12
  • Città Sindia
  • CAP 08018
  • Zona Nuoro

Dettagli

Aggiornato il Agosto 6, 2025 at 9:58 am
  • ID proprietà: 116-GM
  • Prezzo: €75.000
  • Dimensione proprietà: 300 m²
  • Camere da letto: 3
  • Camere: 6
  • Bagno: 1
  • Garage: 2
  • Dimensioni di garage: 30
  • Tipo proprietà: Casa Indipendente
  • Stato proprietà: Vendita
  • Piano: Terra
  • Numero di Piani: 2
  • Stato: Da ristrutturare

Informazioni sui contatti

Vedi annunci

Richiedi informazioni su questa proprietà

Annunci simili

Confronta Strutture

Confronta
Stefania Fara
  • Stefania Fara